kontakt

e’Klifeld

Olsztyn

tel. + 48 602 355 574

e-mail: klifeld@klifeld.pl

zobacz
jak budujemy

Domy na sprzedaż

DOM „WARMIŃSKI - 3” 2016r.

D O M   „W A R M I Ń S K I - 3” 2016r.

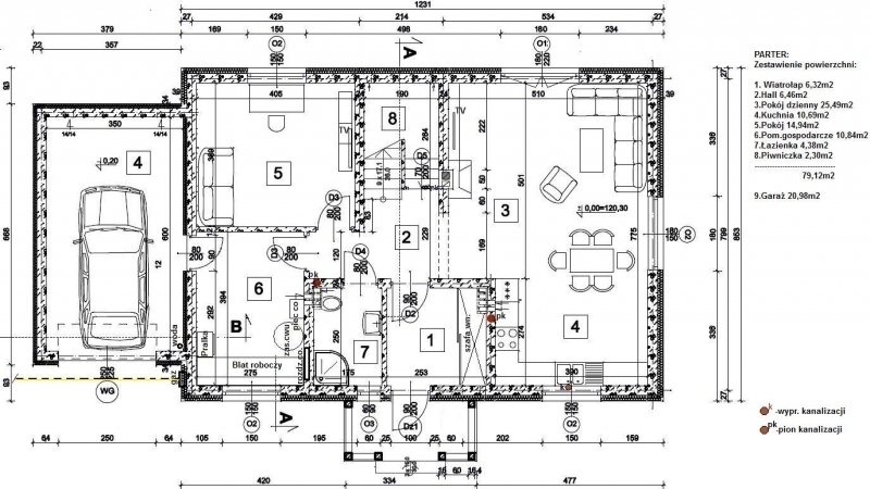
 -Dom jednorodzinny z garażem, pow. użytkowa: 137m2+garaż, działka budowlana objęta miejscowym planem zagospodarowania przestrzennego o pow. 1257m2, tylko 5,3km od Olsztyna. Dom wykończony we wszystkie instalacje, posadzki, tynki. Szczegóły wykończenia domu w opisie poniżej. Idealny układ działki i domu względem stron świata: wjazd na działkę od strony północnej, wejście główne i wjazd do garażu od strony północnej, pokój dzienny od południa i zachodu z wyjściem na ogród od strony południowej. Na parterze duży salon, sypialnia/gabinet, kuchnia z jadalnią, duże pomieszczenie gospodarcze z przejściem do garażu, garaż, piwniczka-spiżarnia, łazienka, wiatrołap i przestronny hall.
Na piętrze 3 sypialnie, garderoba, duża rodzinna łazienka, taras 26m2.

                                                                           WO 1

Dom w technologii YTONG ENERGO:

-ściany zewnętrzne domu: Ytong Energo gr.24cm + styropian grafitowy gr.18cm, U=0,12W/(m²K). Ytong Energo to najcieplejszy materiał budowlany, jaki można dziś kupić na polskim rynku.

      *normy cieplne obecnie wynoszą U≤0,25 W/(m2K), a dla budynków energooszczędnych (U≤0,20 W/(m2K) - ściany naszego domu to: U=0,12W/m2K. - przegroda wolna od wewnętrznej kondensacji, czyli prawidłowa pod kątem uniknięcia rozwoju pleśni.

-nadproża ścian zewnętrznych domu to systemowe nadproża YTONG o wysokiej izolacyjności termicznej

-okna firmy Drutex – IGLO 5, szklenie trzy-szybowe, dwukomorowe z ciepłą ramką, o wsp.K=0,7 -  kolor Orzech

-rolety zewnętrzne antywłamaniowe na wszystkich oknach, sterowane elektr.

-okna dachowe szt.4 dla lepszego doświetlenia pokoi na piętrze + wyłaz dachowy szt.1

-drzwi zewnętrzne antywłamaniowe DELTA PREMIUM Trento z progiem dębowym

-brama garażowa segmentowa automatyczna + 2 piloty

-parapety zewnętrzne z cegły "warmińskiej" - ręcznie formowanej

-stylowy ganek "warmiński" - słupy i rygle drewniane + cegła

-front domu i ściana szczytowa-zachodnia wykonana z cegły warmińskiej

-cokół domu z cegły warmińskiej

-zastosowano dodatkowo pełne deskowanie dachu pokryte membraną VENTIA COBALT PLUS

-dachówka ceramiczna angoba czerwona Hollenderka11 TONDACH.WO 1 E

-drewniana podbitka dachu zabezpieczona impregnatem firmy ALTAX w kolorze orzech

-kominy firmy Schiedel – obmurowane ponad dachem cegłą warmińską

-taras nad garażem 26m2 pokryty deską tarasową impregnowaną olejem firmy ALTAX

-założona instalacja odgromowa domu (dach, kominy + 4 złącza kontrolne na budynku) dla dodatkowego bezpieczeństwa przy aktualnych anomaliach pogodowych

-przyłącza elektr, wod-kan, gaz

-wewnętrzna instalacja elektryczna z rozdzielnią HAGER

-czujnik zmierzchowy do sterowania oświetleniem zewnętrznym

-wewnętrzna instalacja wody wraz z licznikiem + instalacja i dodatkowy licznik wody na ogród

-instalacja wody pitnej wyposażona została w filtr HONEYWELL

-wewnętrzna instalacja kanalizacji

-wewnętrzna instalacja gazu

-instalacja CO (podłogówka w całym domu z możliwością regulacji temperatury w każdym pomieszczeniu) + 2 grzejniki łazienkowe

-instalacja do czujnika pogodowego, który dodatkowo steruje ogrzewaniem z uwzględnieniem aktualnej pogody

-instalacja centralnego odkurzacza (szufelka w wiatrołapie, przy kominku i w kuchni, dodatkowe gniazdo do odkurzania w garażu)

-instalacja alarmowa

-instalacja TV w każdym pokoju                        taras

-ocieplenie skosów poddasza wełną gr.30cm

-ocieplony strych wełną gr.20cm (pow.podłogi strychu: 36m2)

-schody na strych firmy FAKRO

-płyty GK na skosach poddasza

-tynki wewnętrzne Knauf MP75 DIAMANT – najtwardszy tynk gipsowy na rynku - dzięki temu ściany są lepiej zabezpieczone przed uszkodzeniami

-posadzki betonowe zbrojone - wykonane agregatem

-pod posadzką parteru zastosowano izolację ze styropianu gr.15cm

-ściana telewizyjna w salonie wykoanana z cegły "warmińskiej"

-ubezpieczenie "BEZPIECZNY DOM PLUS" 2016-2017 w Allianz

-kupujący zwolniony z podatku PCC

SUPER CENA!!!!   499.000zł  485.000zł.

ZAPRASZAM.

 

AKTUALNOŚCI:

1. DOM SPRZEDANY.

2. Wkrótce rozpoczęcie nowej inwestycji - dwa kolejne domy w nowej odsłonie projektu "DOM WARMIŃSKI". Zapraszam do kontaktu. Jest możliwość modyfikacji projektu przed rozpoczęciem budowy. Dodaj do swojego domu coś od siebie.

3. Dom WARMIŃSKI 4 i 5 - prace rozpoczęte. *(projekt, geologia, uzbrojenie terenu)

 dom Warmiński 1  dom Warmiński 

 

 

Rzut parteru:                                                   Rzut piętra:

powrót...
Copyright 2016 - e’Klifeld